中古一戸建て 横浜市青葉区美しが丘の家

0120-717-021通話料無料
営業時間10:00~18:00
| 価格 | 10,800万円 ローンシミュレーション | ||
|---|---|---|---|
| 月々の支払い | 27.6万円 (ボーナス月の支払額:約33.2万円) | ||
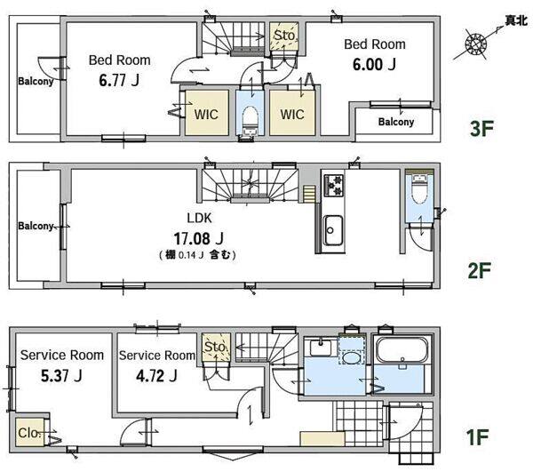
| 間取り | 6LDK+S(Sはサービスルームの略です) | ||
| 所在地 | 神奈川県横浜市青葉区美しが丘5丁目 | ||
| 交通 | 東急田園都市線「たまプラーザ」駅 徒歩9分 | ||

東急田園都市線「たまプラーザ」駅徒歩9分の二世帯住宅です。
特徴ピックアップ
- 駅徒歩10分以内
- 駐車2台可
- 第一種低層住居専用地域
- 浴室1坪以上
- 建物面積100㎡以上
- 土地30坪以上
- 前面道路6m以上
- 南側道路面す
この物件にピンと来なかったら…
当サイトには大手物件サイトにはない物件がたくさん!
物件の特徴
物件番号:56582401
- 物件種別
中古一戸建て
- 所在地神奈川県横浜市青葉区
美しが丘5丁目
- 最寄駅
- 面積(土地)
260.19m²
- 面積(建物)
226.19m²
- 建物構造/階数
木造/地上3階建て
- 築年月
1996年11月
- 引渡可能年月-
- 建物現況
居住中
- 駐車場/台数
有/2台
- 建築確認番号-
- 土地権利
所有権
- 地代-
- 地目
宅地
- 借地期間-
- 都市計画
市街化区域
- 国土法届出-
- 用途地域
第一種低層住居専用地域
- 建ぺい率/容積率
50%/80%
- 接道状況
南6.5m(公道)
- セットバック-
- 私道負担-
- 備考
敷地内段差有/3LDK+3SLDK/車種による
- 設備/仕様/特徴
建物面積100m2以上/土地面積30坪以上/南側道路面す/前面道路6m以上/二世帯以上/システムキッチン/浴室1坪以上/温水洗浄便座/駅徒歩10分以内/L字型キッチン/都市ガス/公共水道/公共下水
- 小学校区
- 中学校区
- 取引形態
媒介
- 取引条件の有効期限
2025年11月12日
- 情報更新日
2025年11月3日
- 次回更新予定日
2025年11月17日
周辺環境
- 東急電鉄「たまプラーザ」駅まで約720m
- イトーヨーカドーたまプラーザ店まで約777m
- 横浜市立山内小学校まで約928m
- 横浜市立山内中学校まで約528m
- 小桜愛児園まで約646m
通勤・通学を調べる
目的駅
ご希望の物件が見つからないあなた!会員限定物件なら最適な物件が見つかるかも?
資料請求フォーム
- 1.情報入力
- 2.資料請求完了
選択した物件
| 物件種別 | 所在地 | 最寄駅 | 価格 | 面積(土地/建物) |
|---|---|---|---|---|
中古一戸建て | 神奈川県横浜市青葉区美しが丘5丁目 | 東急田園都市線「たまプラーザ」駅 徒歩9分 | 10,800万円 | 260.19m²/226.19m² |
見学予約フォーム
- 1.情報入力
- 2.見学予約完了
選択した物件
| 物件種別 | 所在地 | 最寄駅 | 価格 | 面積(土地/建物) |
|---|---|---|---|---|
中古一戸建て | 神奈川県横浜市青葉区美しが丘5丁目 | 東急田園都市線「たまプラーザ」駅 徒歩9分 | 10,800万円 | 260.19m²/226.19m² |
- 上記内容と現況が異なる場合には現況を優先とします。
- 建築条件付土地とは、土地売買契約後、一定期間以内に土地の売主または売主の指定する建築業者と、建築請負契約を締結していただくことを条件として売買される土地のことをいいます。この期間内に建築請負契約が成立しなかった場合は、売買契約は白紙となり、お支払い頂いた代金は全額返還致します。
- 建築条件が無い物件の参考プランは、建築請負会社を特定するものではありません。
- 完成予想図は図面を基に書き起こしたもので、実際とは多少異なることがあります。
- 写真には一部CG加工をしたものがある場合があります。
- 掲載写真内の家具・調度品は価格に含まれません。
- 設備及び仕様写真は参考であり、実際のものと異なります。
- 掲載画像にモデルルーム、モデルハウス、展示場、ショールームの画像があった場合、今回販売の物件と異なる場合があります。
- 陽当り・眺望・通風・採光についての説明は将来にわたって保証されるものではありません。
- 徒歩所要時間は80m=1分として換算したもので、距離は地図上の概算によるものです。
- 電車所要時間は日中平常時のもので時間帯により異なります。また乗換え・待ち時間は含みません。
- バスの所要時間は日中時の平均時間で交通状況により異なります。また、系統により異なる場合があります。
- 地図はデータ作成時点のものであり、現状と異なる場合があります。
- 地図は物件付近の地図を表すものであり、実際の物件所在地とは異なる場合がございます。
- 略式凡例/RC=鉄筋コンクリート、SRC=鉄骨鉄筋コンクリート、SERVICE ROOM=納戸、SB=セットバック、P=駐車スペース、WIC=ウォークインクローゼット、W=洗濯機置場、R=冷蔵庫置場、WC=トイレ、CLO=クローゼット、STO=保管庫、VOID=吹抜、ENT=玄関
- 情報更新日から現在までの間に売却済となった場合はご容赦下さい。
- 掲載の物件は仲介物件です。ご契約に至った場合、消費税相当額を含む当社規定の仲介手数料をお支払い頂きます。


